Estudio de 35 metros con muchísima luz natural

Este pequeño pero encantador estudio, ubicado en pleno centro de Moscú, goza de muchísima luz natural y en su reforma se desecharon tabiques innecesarios para hacerlo más espacioso y confortable.
Los propietarios, que viven fuera de la ciudad, necesitaban un piso para estancias temporales y cuando lo encontraron vieron la oportunidad de reformarlo con una nueva distribución para conseguir una casa práctica y cómoda, que rentabilizara la escasez de espacio y dejara circular la luz natural sin obstáculos.
Para ello, recurrieron a Anton Korneev y Ekaterina Blokhina, componentes del Taller de diseño Korneev que se enfrentaron con tal objetivo a la reforma de este estudio.

Espacio diáfano
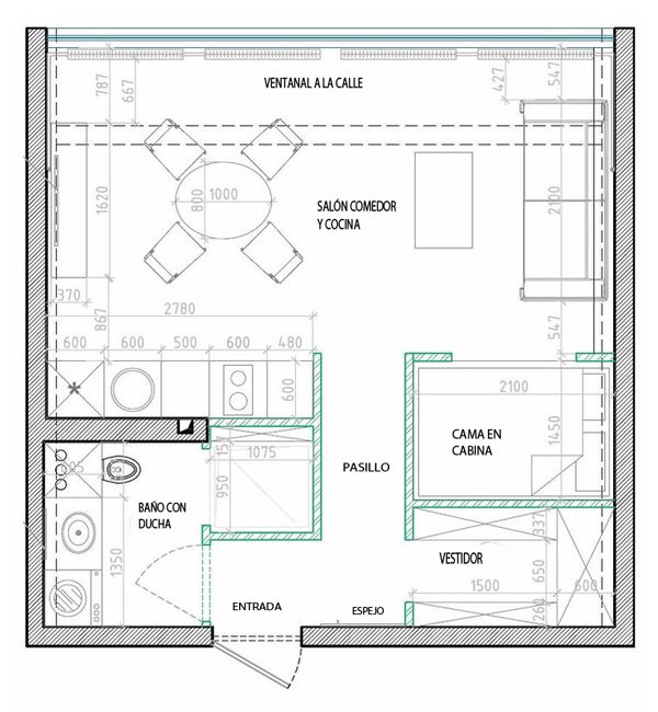
Configurado como un ambiente diáfano, el estudio está formado por espacios contiguos: el salón, el comedor y la cocina, así como una cabina abierta en la que se encuentra la cama, solo el baño está aislado para mayor intimidad.
Dado el pequeño metraje y la altura de los techos (255 cm), los diseñadores decidieron utilizar el color blanco como telón de fondo y la madera clara para cubrir el suelo, que ayudan a reflectar la luz natural. Para romper con la "aparente" monotonía del blanco, incluyeron toques de color en muebles, textiles y detalles decorativos.

El dormitorio
A un lado de la zona de estar, enmarcado por un gran vano canteado en blanco, se situó el dormitorio, a modo de cabina. La cama se ensambló en una base metálica con zona de almacenaje. La pared que hace de cabecero se cubrió con tableros de parqué reciclados.

Ventana panorámica
Sin duda, uno de los grandes protagonistas de este estudio es la luz natural que inunda cada metro del piso. Para que esto fuera posible, se realizó un gran ventanal que preside toda la pared con una amplia ventana panorámica en el centro. A ambos lados, visillos y cortinas realizadas a medida en tono gris, que dejan pasar la luz pero la tamizan.


Cocina y comedor
En el caso de la cocina se optó por una solución funcional. En una sola línea se colocó un modelo de Ikea con muebles en negro con perfiles blancos, que cogen toda la pared, menos el hueco destinado al frigorífico. En la misma línea de sencillez se equipó el comedor con muebles de madera de estilo retro, que los propietarios compraron en una tienda online. En este espacio destaca el aparador de madera de pino pintado en amarillo.

El vestidor
Hasta en los estudios más pequeños se puede habilitar un espacio para colocar la ropa y algo más, como la tabla de la plancha. En este estudio se encontró en el recibidor, un pequeño hueco, sin puertas innecesarias. Y en la pared, un espejo de cuerpo entero que encontraron en un mercadillo, en principio dorado, pero que se repintó de blanco para no agobiar el espacio.


El cuarto de baño
Muy pequeño, pero con todo lo necesario para el aseo personal y el lavado de la ropa, ya que bajo la encimera de madera se encastró la lavadora. Un gran espejo tallado preside la zona de lavabo. Dada la escasez de espacio, en lugar de puertas de cristal, se colocó una cortina decorativa.

Proyecto realizado por el equipo de Korneev Taller de Diseño. Fotos: Olga Shangina. Vía: Shkolaremonta.