Una coqueta buhardilla de 48 metros en el centro de Madrid
Vivir en pocos metros es posible si se cuenta con una buena planificación del espacio. Nos lo demuestra esta coqueta buhardilla, que se restauró cuidadosamente para aprovechar cada uno de sus 48 metros cuadrados. El estudio de decoración e interiorismo Lola Herre convirtió los antiguos trasteros del edificio en una sorprendente vivienda, en la que todos los espacios lógicamente están unidos. Para lograr algo más de altura en el techo, se eliminaron las antiguas losetas de barro y se limpió el solado de arena para rascar hasta el último centímetro y dar paso al nuevo suelo de madera de haya maciza. Los muros, las vigas y todo el techo también fueron restaurados y saneados. La buhardilla tiene cinco ambientes bien delimitados, aunque estén unidos. En primer término, una zona de estar, en la que llama la atención el sofá de Mies van der Rohe, original de 1929, con la colchoneta retapizada. La mesa de centro está fabricada con trozos de palé pintados de blanco y un sobre de cristal.

Entre la zona de estar y la de descanso, se ubicó un pequeño comedor, con una mesa plegable que, cuando está cerrada, sólo mide 20 cm de ancho. Las sillas y la mesas son de Ikea.


La cocina, con muebles modulares de Ikea, cuenta con todo lo necesario: fregadero, una placa de cocción, mininevera encastrada bajo el mueble, microondas y zona de almacenaje. Para destacar esta zona, se colocó un papel pintado de flores negras sobre fondo blanco, que también disimula el ángulo que hace la pared.

La cama se ubicó al fondo, en donde se realizaron unos armarios a medida, laqueados en blanco, al igual que la puerta que conduce al baño. Una estantería baja da cierta independencia a la cama de 135 cm. Sobre el mueble, llama la atención una curiosa lámpara en forma de copa, realizada por Lola Herre.

Frente al sofá se colocó un mueble bajo para el televisor. Al fondo, todavía quedó espacio para ubicar un escritorio y crear una zona de trabajo, que se encuentra frente a la puerta de entrada a la buhardilla. La lámpara de tres brazos circulares, colacada sobre el cubo de Coke, y el aplique de la pared también son obra de Lola Herre.

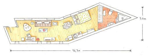
En el plano se puede apreciar la forma rectangular de la buhardilla que, hacia la mitad, hace un leve ángulo. El cuarto de baño se ubicó al fondo aprovechando la mayor altura del techo para poder colocar la ducha. En definitiva, 48 m2 en los que se han optimizado todos los espacios y sacado partido a los elementos arquitectónicos que estaban en origen. Obra y decoración del Estudio Lola Herre (Tel.: 696 117 749). Fotos: Decoratrix.
